Catalogo / DEPURAZIONE / Vasca Imhoff Ø2500 H267 Monolitica (fino a 45 utenti )
| DEPURAZIONE | Vasca Imhoff Ø2500 H267 Monolitica (fino a 45 utenti ) |
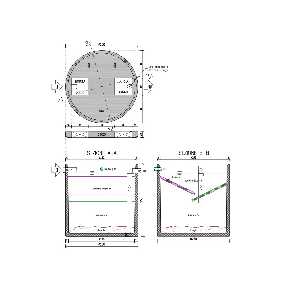
Voce di capitolato
Impianto di trattamento acque reflue costituito da vasca Imhoff prefabbricata monolitica completa di soletta di copertura di tipo carrabile. La vasca Imhoff è composta da due distinti comparti:
- sedimentazione
- digestione
Il comparto di 'sedimentazione' è dimensionato in modo che i liquami vi possano sostare dalle 4 alle 6 ore con il carico di punta, e quello di 'digestione' dimensionato in base ad una capacità di 100 litri pro capite considerando due estrazioni annue dei fanghi.

| Vasca Imhoff Ø2500 H267 Monolitica (fino a 45 utenti) |
| Codice | FIM2500A2 |
| P.V.R. | PV |
| Ø cm | 250 |
| Ø1 cm | 230 |
| Peso Kg | 8,635 |
| Portata motrice pz. | 1 |
| Portata autotreno pz. | 3 |